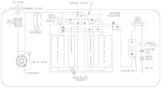
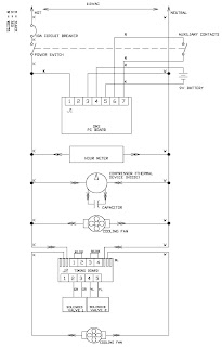
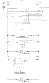
$ 0 0 230V ELECTRICAL SCHEMATICClick on the pictures to Zoom. 115V ELECTRICAL SCHEMATICPNEUMATIC FLOWCHART - PS00007, WITH OCSI